Coming Soon Properties
If you're having trouble finding the right property in this competitive rental market, we have a stealthy solution for you, available exclusively through the Foundation Rentals network. Join now and you can get early access to some of our most desirable "coming soon" properties before they hit craigslist, MLS, etc - sometimes available just one week before they hit the market, sometimes as long as months in advance. $95.00 will get you 1-year's access to the list and is renewable as needed. For a limited time, sign up now and get UNLIMITED access.
Join Now
                     5
                
                                     
                                        
                        This property is only viewable with a Coming Soon Membership.
                        
Join
                                                Join
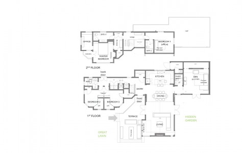
$14,750/month
                
                                            Tiburon, CA 94920
                                    
                
                                            Single Family Residence for lease
                                    
                - 4
 Beds
